End to End Service Offerings






Bathroom Pods
At Placeable Solutions, we provide various models of bathroom pods (POD A, B, C, and D) tailored for different needs:
POD A: A full-size commercial portable bathroom with optional shower facilities and a Changing Places facility, ideal for schools and community sports.
POD B: A full-size, permanent domestic bathroom suited for home care applications.
POD C: A semi-permanent, portable domestic ensuite bathroom on wheels, unique to the market and versatile, ideal for short-term hire.
POD D: A standalone bathroom ensuite, perfect for accessible showering and toileting for the disabled, designed for internal use and completely self-contained.
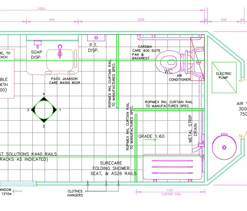
Custom-built Solutions
We offer customised designs to meet specific accessibility requirements, including DDA-certified design modifications and installation at short notice. Our designs take into account our clients’ needs and site access limitations.
We also manage initial on-site inspections, delivery Australia-wide (including remote areas), and provision of access ramps and handrails for all of our pods for temporary, long-term, or permanent installation.
Our clients include government groups, healthcare operators, private clients (involving the NDIS), city councils, and community organisations.
Compliance and Standards
At Placeable Solutions, we ensure that all of our products are fully compliant with evolving standards and compliance legislation related to disability bathrooms and Changing Places facilities. We closely monitor and act on changes to specifications outlined by respective authorities to maintain the highest quality and standards.
